Sonlu Elemanlar Yöntemi ile Yapısal Analiz

ideCAD ile Yapısal Analiz, Entegre Mimari Tasarım da dahil olmak üzere Yapı Mühendisleri için hepsi bir arada Bütünleşik Yapısal Analiz Yazılımı çözümüdür.
ideCAD'deki Entegre Yapısal Analiz İş Akışı, Betonarme ve Çelik Yapılar için Mimari Tasarım, Yapısal Analiz, Yapısal Tasarım ve Yapısal Detaylandırmayı Tek Bir Entegre Yapı Mühendisliği Yazılımında Birleştirir.
Ücretsiz Başlayın »
FEA ile Yapısal Analiz

ideCAD Statik, Yapısal Analiz ve diğer birçok Yapı Bilgi Modelleme aracı içeren Hepsi Bir Arada Mimari Tasarım ile Bütünleşik Yapısal Analiz Yazılımıdır.
HEMEN SİPARİŞ VERİN »
Yapısal Analiz için Entegre BIM

ideCAD Statik, Yapısal Analiz ve daha birçok Entegre BIM Aracı ile Donatılmış, Mimari Tasarım ile Bütünleşik iş akışları içeren Yapı Bilgi Modellemesi BIM Yazılımıdır.
Entegre BIM için ideCAD'i keşfedin »
Mimari BIM Modeli

ideCAD, Mimari ve Yapısal tasarımı, entegre iş akışları ile bütünleştirir. Modelleme, düzenleme, revizyonlar, yapısal analiz ve yapısal tasarlama için farklı disiplinler aynı BIM Modeli ile birlikte çalışabilirler.
Yapısal Analitik Model

ideCAD, fiziksel modelinizden otomatik olarak bir analitik model oluşturur. Yapısal ve Mimari BIM Modelleri arasında sorunsuz, çift yönlü entegrasyon ile modelinizin güvenilirliğini ve doğruluğunu artırın.
Mimari ile Otomatik Yükleme

ideCAD, kirişler ve döşemeler için Mimari duvar modelinizden otomatik olarak yapısal yük ataması oluşturur.
Yapısal Yük Atama

Ek yükleri Tanımlamak ve Atamak size daha fazla esneklik ve özgürlük sağlar.
Sismik Analiz

Sismik Analiz ve Tasarım, TBDY ve Çeşitli Uluslararası yönetmelikler kapsamında ideCAD Statik ile Otomatik olarak yapılır.
TBDY 2018 Kontrolleri

TBDY 2018 Bölüm 1, 2, 3 ve 4' te yer alan bina taşıyıcı sisteminin ve süneklik düzeylerinin belirlenmesini hedefleyen yönergelerin kolay takip edilmesini ve yönetmelik ile tutarlı önbilgilerin girilmesini sağlar.






TBDY 2018 3.3.1' e göre rijit bodrum kat kontrolleri gerçekleştirilir. Rijit bodrum tanımına uygun binalarda yönetmelik gereği 2 aşamalı hesap yapılır. Birbirinden oldukça uzak modlarda titreşen bodrum ve üst yapının ayrı ayrı analizi yapılır, bu analiz için tek model kullanılırken bodrum katlar için üst bölüm kütlesiz alınır, üst bölüm için ise bodrum katlar kütlesiz alınır. Her iki analizde de yapının tüm rijitliği kullanılır.


TBDY 2018 4.3.4.4 gereği iki aşamalı hesap yapılır. İlk aşamada çerçeve kolonlarının alt ve üst uçları mafsallı ikinci aşamada ise tüm bağlantılar monolitik olarak modellenir. İç kuvvetler için en elverişsiz sonucu veren durum kullanılırken, göreli kat ötelemesi kontrolü için ikinci aşama hesaptan elde edilen değerler kullanılır.


Modal Hesap Yöntemlerinden bir tanesi olan bu yöntem ile TBDY 2018 Ek 4B' de belirtilen hesaplama kurallarına uygun olarak binaların deprem hesabı yapılır.

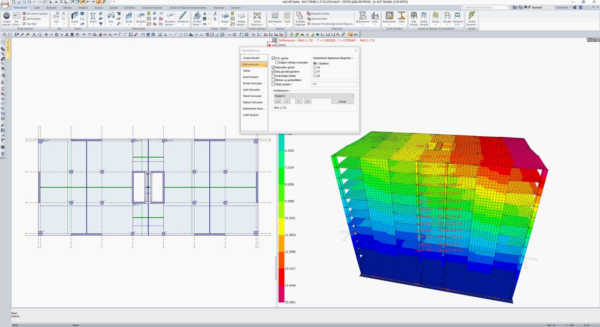
Öz Vektör Analizi

Öz vektör mod analizi, yapının davranışını anlamak için kullanılabilecek yapının doğal titreşim modlarını bulur.
Ritz Vektör Analizi

Modlar, dinamik yüklemenin uzamsal dağılımı dikkate alınarak oluşturulur; bu, aynı sayıda doğal mod şeklinin kullanılmasından daha doğru sonuçlar verir
Aşamalı İnşaat Analizi

İtme Analizi

Nonlineer İtme Analizi ile Şekildeğiştirmeye Göre Değerlendirme ve Tasarım (ŞGDT) yaklaşımı ile doğrusal olmayan itme analizi (doğrusal olmayan performans analizi) yapılır. Yeni yapılar, mevcut yapılar ve güçlendirme yapılmış binalarda itme analizi uygulanır. Nonlineer İtme Analizinde doğrusal olmayan malzeme davranışı, plastik mafsallar, plastik dönmeler, yayılı plastik davranış modeli birim şekildeğiştirme değerleri, performans noktası ve yapı performansı otomatik hesaplanır. Sabit tek modlu itme analizi, değişken tek modlu itme analizi ve Artımsal Spektrum Analizi (ARSA) ile itme analizi olmak üzere üç farklı itme analizi yöntemi bulunur.
Euler Burkulması

Isı Farkları Analizi

Time History

Performansa Dayalı Tasarım

Riskli Yapı Analizi

Uluslararası Yönetmelikler

Uluslararası Yönetmelikler için ideCAD'i inceleyin »
Mimari Çizimler ve Ruhsat Projesi

ideCAD ile Ruhsat Projesi Çizimleri, Konut ve Sanayi yapıları için Hepsi Bir Arada Bütünleşik Yazılım çözümüdür.
Yapısal Tasarım için ideCAD'i inceleyin »
Betonarme Mimari Çelik Uygulama

ideCAD Statik ile Mimari, Betonarme ve Çelik Uygulama Projesi Çizimleri, Betonarme ve Çelik Binalar için Hepsi Bir Arada Bütünleşik Uygulama Çizimleri Yazılım çözümüdür.
Yapısal Detaylandırma için ideCAD'i inceleyin »
ideCAD Statik

ideCAD Statik ; Yapısal Mühendislik ve Mimari Tasarımı Yapı Bilgi Modellemesi (BIM) ile Bütünleştiren İnşaat Mühendisliği Yazılımıdır.
Yapısal Mühendislik için ideCAD'i inceleyin »
ideCAD Mimari

Mimari Tasarım için ideCAD'i inceleyin »
ideCAD One AEC

"Her Şey planladığınız gibi"
Entegre Yapı Tasarımı için ideCAD'i Keşfedin »
